Biomasse-Kraftwerk Voelkel

Kenndaten

  • Bauherr
  • Voelkel Natursäfte GmbH
  • Planer
  • Ahrens Architekten Braunschweig
  • Fertigstellung
  • 2025

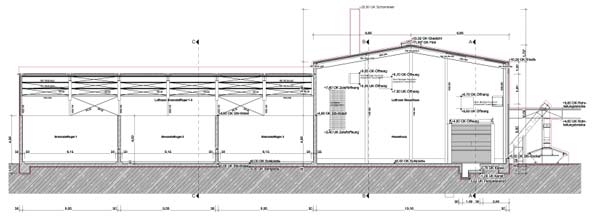
Das Projekt

Neubau eines Biomasse-Kraftwerkes in Höhbeck-Pevestorf